18912364229 English En

    导航 关闭

    解决方案
    一家致力于建/构筑物用一体化智慧能源站系列产品的研发、、、、设计、、、、生产、、、、检测、、、、安装及售后服务的高科技企业。。
    关键词:
    中广核元江塘房项目
    工业生产 发布时间:2024年06月24日 来源: 浏览量:1001次

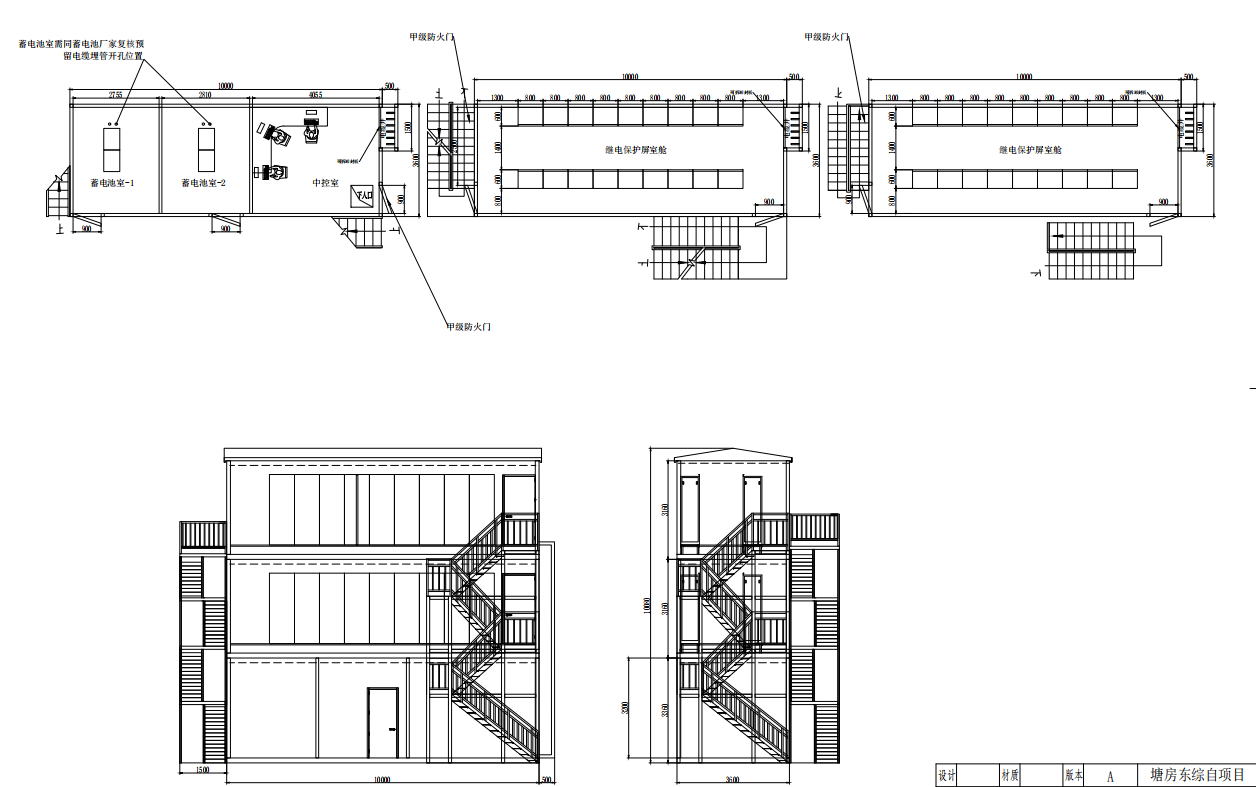
    1、、、项目概况

    项目地位于云南元江,,,集成电力方舱项目,,,箱体尺寸为:

    10500*3600*10800mm  1套

    2、、、系统介绍

    项目由中控室及蓄电池室1套尺寸为10m×3.9m×3.2m和二次舱2套尺寸为10m×3.9m×3.2m,,爬梯及辅控系统组成

    扫码关注手机站

    Copyright © 2024 无锡尊龙时凯科技有限公司 All Rights Reserved.

    站点地图